Beschreibung
Die Repfergasse befindet sich mitten in der Altstadt und stellt einen geschichtsträchtigen Ort in den Schaffhauser Gassen dar. Obwohl über die Jahrhunderte zahlreiche Änderungen vorgenommen wurden, scheint das historische Viertel zeitlich eingefroren zu sein. Der Klostergarten St. Agnes, an welchen die Liegenschaft anstösst, bietet eine hohe Lebensqualität. Der Park schafft eine Verbindung zwischen den Wohnbereichen sowie dem Stadtzentrum und wirkt dabei wie eine grüne Lunge im Herzen der Altstadt von Schaffhausen.
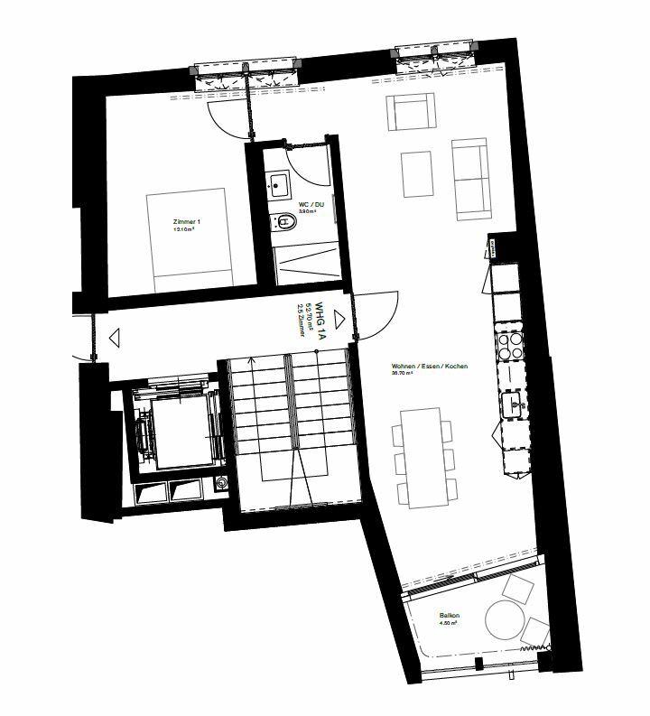
In den historischen Mauern der Repfergasse 17 wurde durch die Totalsanierung im Jahr 2022 neuer, moderner Wohnraum geschaffen. Das Gebäude wurde möglichst in seinen Grundstrukturen erhalten und aber mit dem heutigen Komfort ausgestattet. So sind alle Geschosse bequem per Lift erreichbar und die Wohnungen weisen originelle, zeitgemässe Grundrisse auf.
Die moderne, offene Wohnküche bildet das Herzstück der Wohnung. Die Positionierung im Raum lässt schönen Spielraum beim Möblieren des Wohn- und Essbereichs. Dieser wird nicht nur optisch, sondern auch qualitativ mit dem lauschigen, gedeckten Balkon zum Klostergarten hin erweitert. Das Badezimmer ist mit Dusche, WC und Lavabo ausgestattet. Die Materialisierung des Wohnungsausbaus ist sehr hochwertig und geschmackvoll.
Zur Wohnung gehört ein Kellerabteil im Untergeschoss, sowie die Mitbenutzung der gemeinschaftlichen Waschküche mit Waschmaschine und Trockner.
Eigenschaften
Umgebung
- Stadtzentrum
- Geschäfte
- Einkaufsmöglichkeiten
- Bank
- Post
- Restaurant(s)
- Bahnhof
- Bushaltestelle
- Autobahnanschluss
Aussenbereich
- Balkon(e)
Innenbereich
- Lift
- Offene Küche
- Keller
Ausstattung
- Moderne Küche
- Glaskeramik
- Backofen
- Kühlschrank
- Tiefkühler
- Geschirrspüler
- Waschmaschine
- Wäschetrockner
- Gemeinschaftswaschküche
- Dusche
Boden
- Fliesen
- Parkett
Zustand
- Neu






